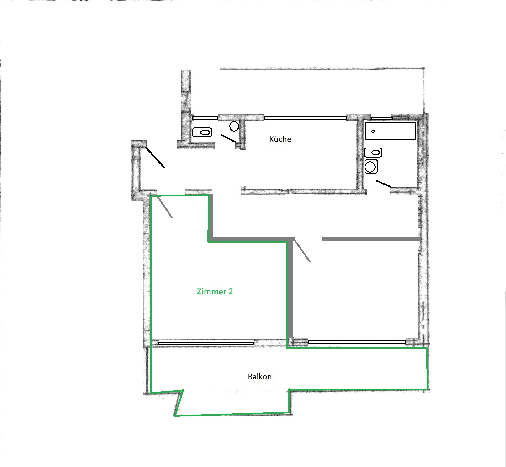
Zimmer 2

Größe: ca. 19 m²

Diese Unterkunft ist eine Wohneinheit eines Studentenwohnheimes. Für die Anmietung ist eine Immatrikulationsbescheinigung erforderlich. Das Haus befindet sich in der Klosterstraße, Ecke Dürener Straße. Die Wohneinheit hat drei Bewohnerzimmer. Die Küche, die Diele und das Bad werden gemeinsam genutzt. Die Küche ist mit Küchenschränken, Backofen, Induktionskochfeld, Dunstabzugshaube, Kühlgefrierkombi, Mikrowelle und Spülmaschine ausgestattet. Das Bewohnerzimmer verfügt über einen Kleiderschrank und die Diele über eine Garderobe. In allen Räumen ist eine Grundbeleuchtung vorhanden. In der Fahrradgarage steht ein Fahrradstellplatz zur Verfügung. Die Mieterin kann einen Waschturm im Waschraum des Kellers, bestehend aus einem Trockner und einer Waschmaschine, zu bestimmten Tagen der Woche nutzen. Der Vermieter stellt unverbindlich einen allgemeinen Internetanschluss für das Haus zur Verfügung, ohne Haftung für die Qualität, einen Ausfall der Verbindung oder hierdurch entstehende Schäden. Der Mietzins beträgt 725 €. Es handelt sich um eine Pauschalmiete in der die Betriebskosten, die Heizkosten und das Entgelt für die Nutzung des Waschturms, des Stellplatzes in der Fahrradgarage und des Internetanschlusses enthalten sind. In der Pauschalmiete sind die Stromkosten nicht enthalten. Die Organisation und Verwaltung des Stromanschlusses übernimmt der Verein. Die Mieterin zahlt monatlich eine Vorauszahlung in Höhe von 35 € für den Stromverbrauch an den Verein. Eine Abrechnung erfolgt jährlich oder bei einem Mieterwechsel. Die Kaution beträgt 1.500 €. Der Vertrag kann von beiden Seiten mit einer Kündigungsfrist von 3 Monaten gekündigt werden. Der Mietvertrag wird auf die Dauer des Studiums beschränkt. Die maximale vereinbarte Laufzeit beträgt 3 Jahre. In Einzelfällen kann eine Verlängerung beantragt werden. Bei der Bewerbung bitten wir auch das Alter, das Studienfach und die Restdauer des Studiums anzugeben.

Richten sie bitte Anfragen an: vermietung@lcw-verein.org